户外桌椅如何验货?户外桌椅验货测试清单

户外家具检验需要做哪些测试,户外座椅怎么验货?
一、户外家具的定义
1. Outdoor furniture for Contract use
使用在公用场所的户外家具, 例如餐馆, 酒店, 游泳池, 旅游度 假场所. 由于是公共使用的家具, 所以有高的抗压要求.
2. Outdoor furniture for Domestic use
使用在私人场合, 例如家里的花园, 阳台, 露台.
3.Outdoor furniture for Camping use
容易搬运, 可折叠, 拆卸, 结构轻便, 用于野营或者旅游. 例如钓 鱼椅, 沙滩椅.
二、户外家具的检验常规测试
1.Assembly check (according to instruction manual) 2.Static Loading check:
-For camping chair: 110 kgs on seat last for 1 hour
-For domestic chair: 160 kgs on seat last for 1 hour
-For camping table: 50kgs;
-For domestic table: 75kgs (force apply on center of table)
If the length is more 160cm, two forces were apply on longitudinal axis of the table top with a distance of 40cm on either side of the transversal axis.
3. Impact check for Chair
-Procedure: Free drop 25kgs load from xxcm height for 10 times,
-To check if any deformation and breakage was found on chair.
对于 2 和 3 的检查, 要求测试完成后, 产品不能有影响使用, 功能及安全方面的问题, 轻微的变形但不影响使用和功能是可以接受的,
4. for child
Loading and impact check with half weight of adult ,if the claimed max weight is heavier than half of adult ,we use claimed max weight for check. 家具检验的现场测试 Sample size 通常做 5 个, 如果多款同时检验,
Sample size 可以适当减少, 2 samples per item 最少
5. Moisture content check
6. Coating adhesive check by 3M tape 7.3M tape check for painting
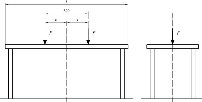
三、桌子的稳定性测试(Stability Check)Europe

-Measure the largest dimension of the table top(L)
-Use this dimension, determine the force F per table as below:
Inspection For Outdoor Furniture
-Apply the the force F to the side where the load is most likely to cause overturning, as far away from the supports as possible, and at a point 50mm from the outer edge of the table top
-Table overturn

Note: For rectangular tables, the largest dimension to consider is the length, not the diagonal.
Inspection For Outdoor Furniture
四、桌子的静压测试(Static loading check) (Europe & USA)
-Load the table with the weight as below:

-The application points is as below:
1)L

2)L>1600mm, at 2 points positioned on the longitudinal axis of the table top with 400mm on either side of the transversal axis

-Hold for one hour
-Collapse, damage and loose structure
四、桌子的静压测试(Static loading check) ( USA)
美国没有具体的标准针对桌子类产品的STATIC LOADING CHECK. 一般 而言,实验室是根据客人的要求来做这项测试。若客人没有具体的要求, 请参照以下方法来做测试:
1). 对于桌面 TABLETOP 是非玻璃的桌子:
a. 餐桌,休闲桌: 桌面面积≥4 平方英尺, 集中静压 300lbs; b.桌面面积 e.茶几,SIDE TABLE(一般是放在走廊,过道上的) 桌面面积≥4 平方英尺, 集中静压 50lbs; 桌面面积
2).对于桌面 TABLETOP 是玻璃的桌子: a.餐桌,休闲桌:100 lbs b.咖啡桌,儿童桌, SIDE TABLE: 50lbs
五、椅子的冲击测试(Impact check) (Europe)
1).Drop 25kgs weight to seat (about center position) from xx cm height for 10 times, check if breakage, detach, deformation is found after check, the slight deformation that not affect the use and function is acceptable.

For articles with more than one seating position apply the rest to one end seat and an intermediate seating position.

2)椅子的冲击测试(Impact check) (USA)
Drop 225lbs(102.3kgs) weight to seat (about center position) from6''(15.2cm) height for 1 time, check if breakage, detach, deformation is found after check, the slight deformation that not affect the use and function is acceptable.
六、椅子的静压测试(Stability check) Europe

Load the seat with the weight as below:
-Carry out the checking simultaneously at the following positions: a)on each position for articles with one or two seats
b)on one end position and the centre position for articles with three seats
c)on two adjacent end positions followed by two adjacent centre positions for articles with four seats or more
-Hold for one hour
-Collapse, damage and loose structure
Note:
1. If the number of sitting places in the seating is not obvious, divide the total seat length (in mm) by 600 and round to the nearest whole number to determine the number of places.

椅子的静压测试(Stability check) USA
300Lbs(136.4kg) 1 hour
七、户外家具的检查注意事项:
1)必须检查配件的数量是否与说明书上的一致
2)如果安装说明书上有尺寸标注的话, 需检查配件的尺寸.
3)根据说明书进行产品安装, 包括安装的步骤是否和说明书一致, 按照配 件的位置以及序号是否和说明书一致. 如果自己不能独自安装的话, 验货员也必须协同工人一起安装, 有孔位的地方需自己拧紧和拧松螺 丝试试. 整个安装过程切忌让工厂工人自己安装.
4)管状配件的时候, 注意检验时应往地上(地上垫纸板) 敲击几下管子, 检 查是否有酸洗时残余的锈粉从管子里面掉出来.
5)组装好的桌椅需放平板上检查一下平稳度. 对于户外的椅子, 如果客人没有特别要求
-间隙小于 4mm, 如果人坐上去不摇晃的话, 不记为问题, 如果摇晃的 话, 记为大问题;
-间隙大于 4mm 小于 6mm, 如果人坐上去不摇晃的话, 记为小问题, 如 果摇晃的话, 记为大问题
-间隙大于 6mm, 不管人坐上去摇不摇晃, 都记为大问题.
对于桌子, 不需要安装的那种, 如果间隙小于 2mm, 用双手用力压一下 桌面, 如果不晃的话, 可以不计问题. 如果晃的话, 记为大问题. 大于 2mm, 不管晃不晃, 都应记为大问题. 对于需要安装的桌子, 摇晃也 可能是工厂安装不当造成的, 如果工厂经过调整能够平稳的话, 可 以不记为问题.
6)对于金属部分的外观检查, 多注意焊接位置的质量, 一般焊接位置容 易出现虚焊和毛刺等问题.
7)验货时不要忽略, 桌椅腿部底下的塑料盖子, 可能会出现松动的安装.
8)对于桌椅上需要受力的塑料件, 一定要关注表面有没有泛白的情况, 差的材质会降 低产品的寿命和安全.
9)对于需要组装的桌子的检验, 由于工厂不是按套进行喷漆, 所以有可能会出现桌腿 之间, 或者桌腿和桌面边缘的色差.
10)对于编藤类的桌椅, 验货员要注意藤条的颜色以及尾端需藏在产品里面, 不能露在 产品的外表面, 特别是消费者在使用过程中容易接触的地方(例如椅子的坐背). 11)产品尺寸要与产品包装上标注的尺寸一致. 产品所具备的功能特点也必须与包装
上描述一致.
12) 对于户外联体野餐桌, 因为该产品的座位和桌面是相连的,所以进行静载测 试时,应当同时在座位和桌面上加载。根据 ENV581-2 条款 6.2.2.1, 对于 4 个及以 上座椅的静载测试方法,以及该产品的座椅分布,应当在任意的两个座位上和桌 面上同时加载。该产品对座位也需要做冲击测试。
13)对于户外的椅子, 如果座位是有编织物或者布料做成的, 验货员检验时需注意当正 常坐在座位上时,不能接触到任何金属框架或者支撑杆,不能任何的不适. 关于这一 点, 验货员需在静载测试前后仔细观察.













